
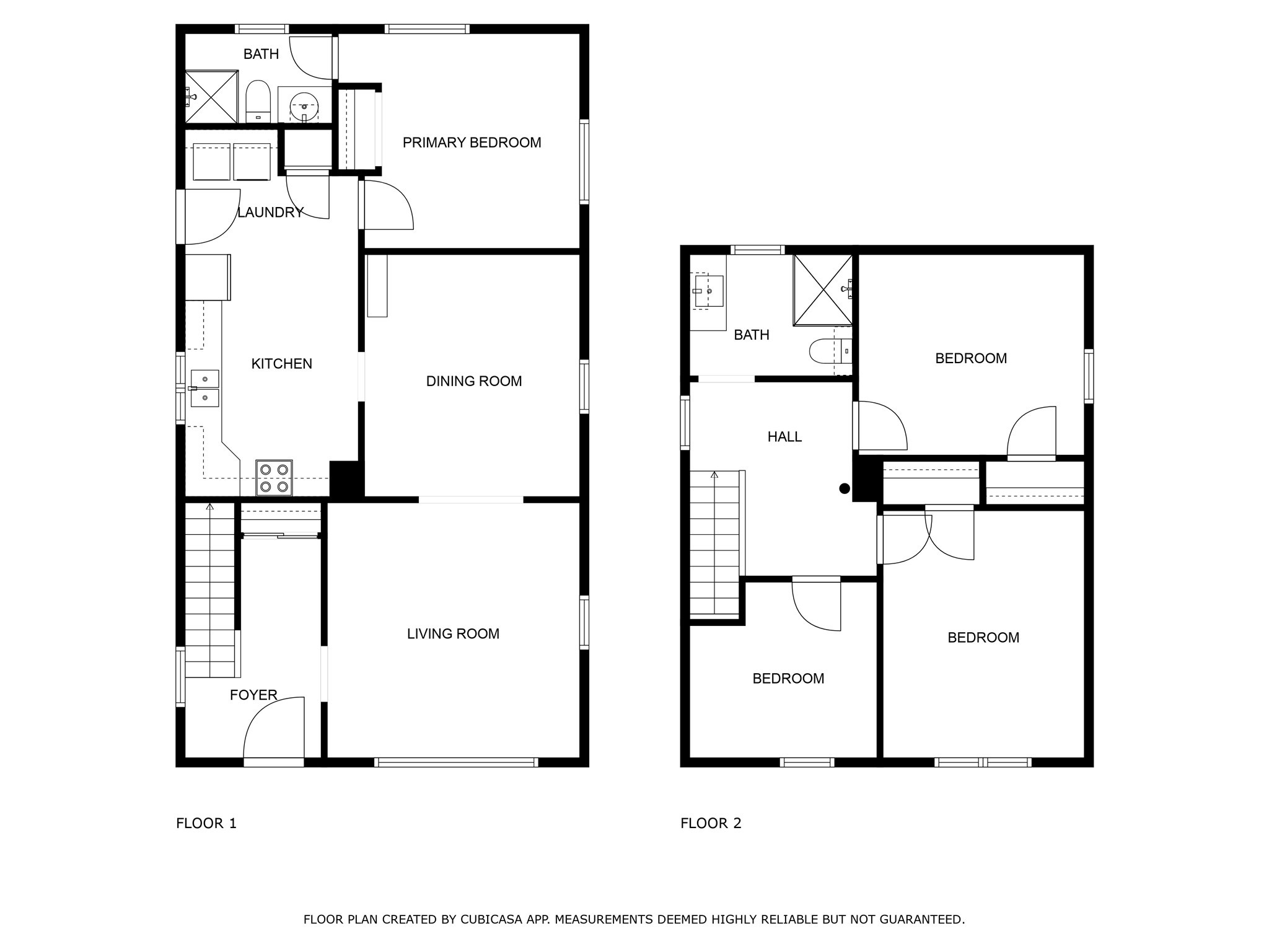
Price Reduced ListingWelcome to 1005 Sherwood Street, a storybook 1910 Craftsman nestled on a picturesque, tree-lined block in Missoula’s vibrant and artsy Westside neighborhood. This enchanting home offers the perfect blend of timeless charm and thoughtful updatesjust minutes from downtown, St. Patrick Hospital, local shops, cafes, and breweries. Step inside this beautifully preserved Four Square-style home and discover 4 bedrooms and 2 bathrooms across two light-filled levels. A main-level primary suitea rare find in historic homesadds convenience and flexibility to the classic layout. The current owners have lovingly maintained and modernized the home where it matters most. Updates include a new roof in 2021, upgraded electrical throughout, new energy-efficient windows, interior paint and a stunningly remodeled upstairs bathroom. Out back, your own private oasis awaits. Enjoy Montana evenings under the stars on the covered patio, soak in the new hot tub, and relax in the fenced backyard... ...surrounded by lush, low-maintenance landscaping. The original garage offers ample storage space and also presents an excellent opportunity for replacement with a stylish accessory dwelling unit (ADU), perfect for guests, rental income, or a private home office. Whether you’re drawn to historic architecture, a welcoming community, or walkable convenience to the heart of Missoula, 1005 Sherwood is that rare gem that has it all. Come experience the magicthis is the one your heart’s been waiting for.
| MLS # | 30058408 |
|---|---|
| Listing Type | For Sale |
| Style | House |
| Sub-Type | Resale |
| Status | Active |
| Year | 1910 |
| Days On Site | 38 |
| Listing Provided By | Ink Realty Group | Amanda Turpen |
| Bed(s) | 4 |
|---|---|
| Bath(s) | 2 Total |
| SQ Feet | 1,496 |
| Garage | 1 |
| Basement | Y |
| Story(s) | 2 |
| Zoning | Residential |
| Acreage | 0.09 |
| Property | 4569 |
|---|
| State | MT |
|---|---|
| County | Missoula |
| City | Missoula |
| Zip Code | 59802 |
| State | MT |
|---|---|
| County | Missoula |
| City | Missoula |
| Zip Code | 59802 |